
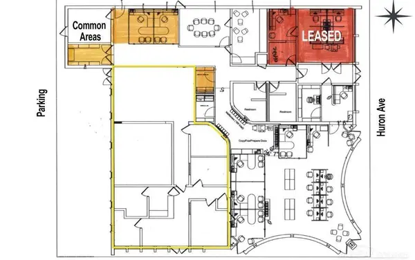
2,168 SqFt
2,168 SqFt
Key Details
Property Type Commercial
Listing Status Active
Purchase Type For Rent
Square Footage 2,168 sqft
Subdivision Butler
MLS Listing ID 58050145587
Year Built 1969
Lot Size 0.530 Acres
Acres 0.53
Property Description
Location
State MI
County St. Clair
Area Area10152Porthuron
Interior
Heating Forced Air, Natural Gas
Cooling Other
Fireplace No
Exterior
Parking Features ParkingLot, OnSite
Community Features Curbs
Utilities Available NaturalGasConnected
View Y/N No
Roof Type Flat
Building
Foundation Slab
Sewer Public Sewer
Water Public
New Construction No
Schools
High Schools Port Huron
School District Porthuron
Others
Acceptable Financing Lease, TripleNetLease
Listing Terms Lease, TripleNetLease
Special Listing Condition ShortSaleNo, Standard


"My job is to find and attract mastery-based agents to the office, protect the culture, and make sure everyone is happy! "






